Facilities and Infrastructure

  • Jetty (Location at Branta Port)
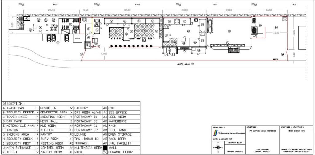
  • Camplong Shorebase
    • Covered Warehouses
    • Open Yards
    • Heavy Equipments (Crane, Forklift)
    • Offices
    • Helipad
  • Support Facilities
  • Hotel
  • Hospital
  • Fire Brigade (Pemadam Kebakaran)